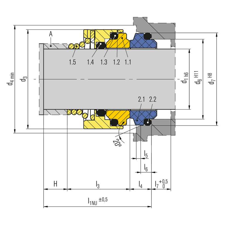
Item Description
1.1 Seal face
1.2 Collar
1.3 O-Ring
1.4 O-Ring
1.5 Spring
2.1 Stationary seat
2.2 O-Ring

BT-FH

Features

  • Single seal
  • For plain shafts
  • Unbalanced
  • Conical spring rotating
  • Dependent on direction of rotation
  • Torque transmission via conical spring

Advantages

  • Universal application opportunities
  • Reliable design
  • High flexibility due to extended selection of materials
  • No damage of the shaft by set screws
  • Dimensions can be customized
  • Alternative seats available

Operating range

Shaft diameter:
d1 = 10 … 100 mm (0.39" … 3.94")
Pressure: p1*= 12 (16) bar (174 (232) PSI)
Temperature:
t* = -35 °C … +200 °C (-31 °F … +392 °F)
Sliding velocity: vg = 15 m/s (50 ft/s)

* Dependent on medium, size and material

Materials

Seal face:
Al-oxide (V), Silicon carbide (Q1), Tungsten carbide (U)
Seat:
Carbon graphite antimony impregnated (A),
Carbon graphite resin impregnated (B),
Carbon graphite, full carbon (B3),
Silicon carbide (Q1, Q6, Q7),
Tungsten carbide (U)
PTFE glass fiber reinforced (Y1),
PTFE carbon reinforced (Y2)
Elastomers:
NBR (P), EPDM (E), FKM (V), FFKM (K)
Metal parts:
CrNiMo steel 1.4401 (G)

Standards and approvals

  • Various material approvals available, e.g. WRAS, UBA, ACS, NSF, FDA (depending on type and material combinations). Please enquire!
  • EN 12756 (FH.NU, FH.KU)

Notes

Alternative seat ring can be supplied with short tail or long tail with slot for pin (to prevent seat rotation).



Product variants

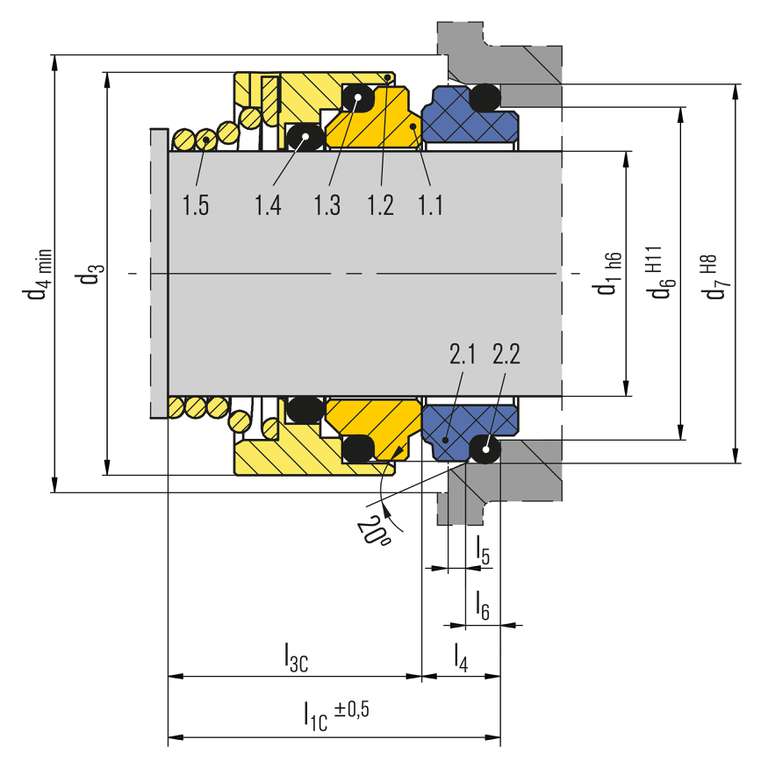
BT-FH.KU

BT-FH.KU

Items and designations are the same as for BT-FH, but with installation length l1K according to EN 12756 (Short, Unbalanced).
Item Description
1.1 Seal face
1.2 Collar
1.3 O-Ring
1.4 O-Ring
1.5 Spring
2.1 Stationary seat
2.2 O-Ring
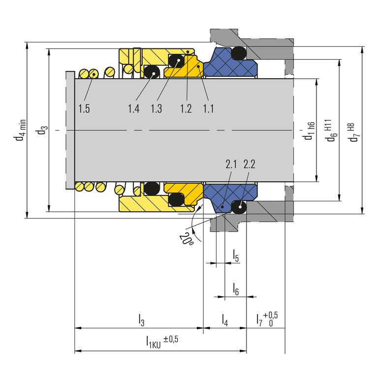
BT-FH.NU

BT-FH.NU

Items and designations are the same as for BT-FH, but with installation length l1K according to EN 12756 (Short, Unbalanced).
Item Description
1.1 Seal face
1.2 Colalr
1.3 O-Ring
1.4 O-Ring
1.5 Spring
2.1 Stationary seat
2.2 O-Ring
BT-FHC

BT-FHC

Items and designations are the same as for BT-FH, but with shorter installation length l3C (see dimension table). Same installation length as the BT-RN.
Item Description
1.1 Seal face
1.2 Colalr
1.3 O-Ring
1.4 O-Ring
1.5 Spring
2.1 Stationary seat
2.2 O-Ring

Similar products

AX25

  • External configuration
  • Balanced
  • Independent of direction of rotation
  • Independent of pressure direction

AX25D

  • Dual seal
  • Balanced
  • Independent of direction of rotation
  • Independent of pressure direction

AX30

  • Unbalanced
  • Dependent on direction of rotation
  • Solid seats
Contact

Inquire about individual solutions

We develop and produce customer-specific special and individual solutions for every application.

Inquire now Discover reference projects
Back to the overview