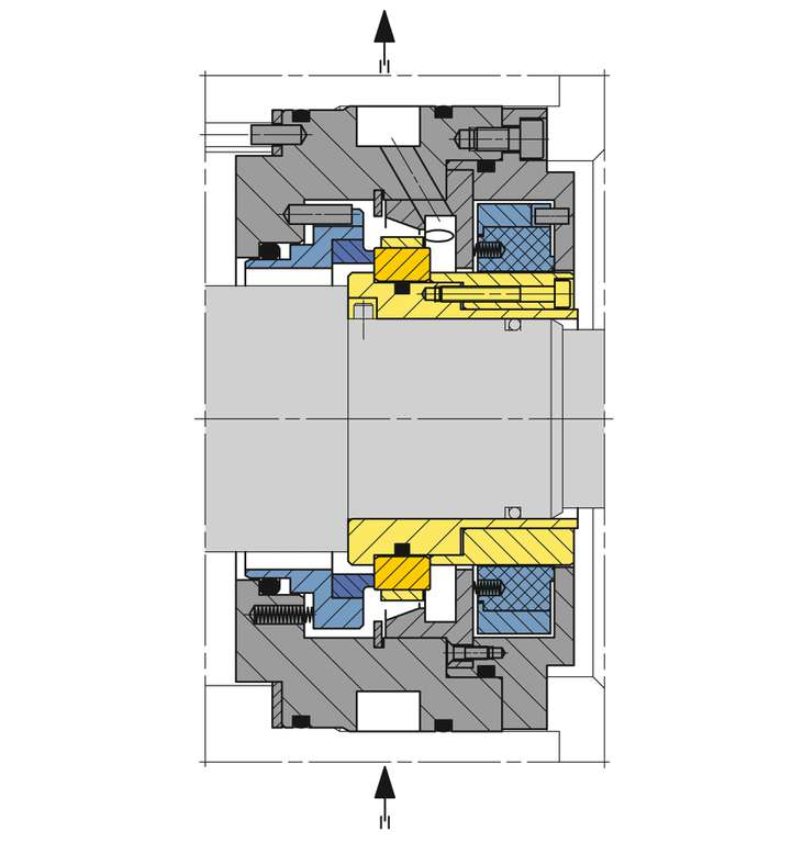
Drawing shows WRS dual seal
Item Description
1 Seat, rotating
2 Seal face, stationary
3 Face housing
6 Spring
7 Shaft sleeve
13 Housing
A Oil IN
B Oil OUT

WRS

Features

  • Oil-lubricated
  • Bi-directional
  • Externally pressurized
  • Ready-to-fit cartridge unit
  • Single, face bushing and double seal available
  • Suitable for high speed
  • Hydrodynamic grooves for increased operating capabilities and stabilized low leakage

Advantages

  • Low oil consumption
  • Rugged seat with bandage ensures reliable operation
  • Wear-free operation by use of lift-off-design
  • Does not open if oil pressure drops

Operating range

Shaft diameter:
25 … 195 mm (1" … 7.7")
Process gas pressure: up to 40 bar (580 PSI)
Required oil pressure: Pproduct + Δp (1-3 bar, depending on sliding velocity)
Gas temperature:
t = -20 °C … +200 °C (-4 °F … +392 °F)
Oil temperature:
t = 30 °C … 60 °C (86 °F … 140 °F)
Sliding velocity: vg = 5 ... 100 m/s (16 ... 328 ft/s)
Oil viscosity: ISO VG32 + 46

Materials

Seal face: Silicon carbide
Seat: Silicon carbide
Secondary seals: FKM
Metal parts: 1.4006 or other stainless steels

Standards and approvals

  • NACE
  • TA-Luft-konform

Notes

The WRS is an oil-lubricated seal that safely seals various types of compressors and organic media. With its rugged design, low life-cycle costs and long service life, the WRS can be found in thousands of applications. The design is optimized by using the finite element method and computational fluid dynamics.

Dimensions on request.



Product variants

WRS single seal
WRS single seal with face bushing

Similar products

B800

  • Oil-lubricated
  • Double seal
  • Balanced
  • Bi-directional
  • Stationary bellows (process side)
  • Multiple springs (bearing side)
  • Shrink-fit seat
  • Double-pressure balanced
Contact

Inquire about individual solutions

We develop and produce customer-specific special and individual solutions for every application.

Inquire now Discover reference projects
Back to the overview