SeccoMix 481

SeccoMix 481
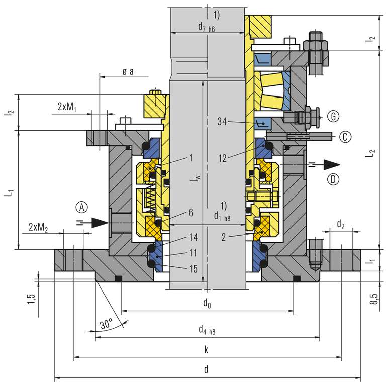
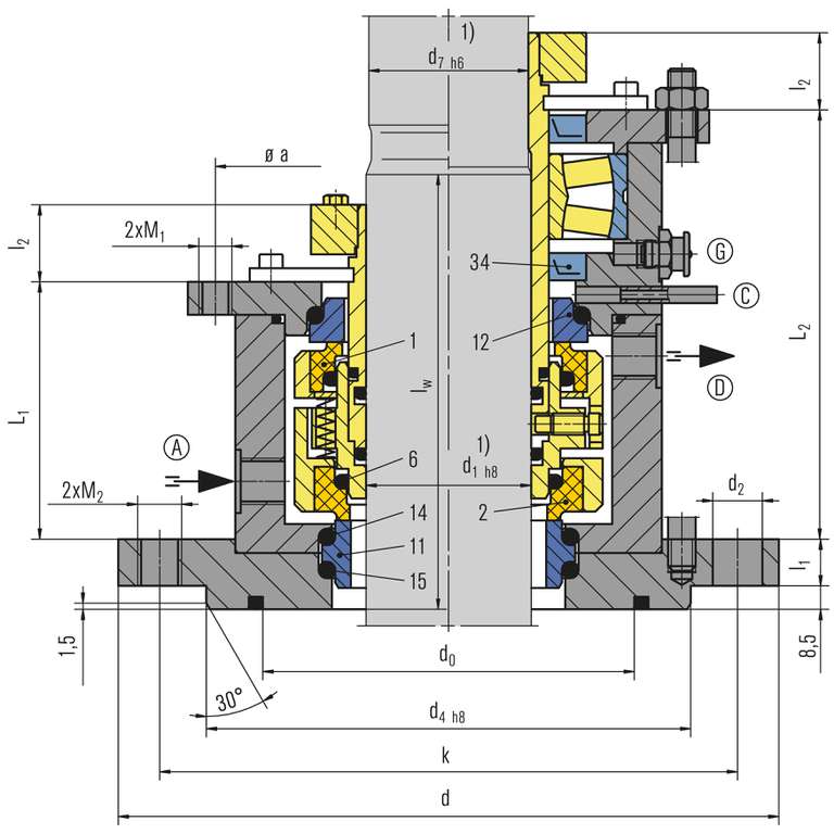
ItemDescription
1Seal face, atmosphere side
2Seal face, product side
6, 14, 15O-Ring
11Seat, product side
12Seat, atmosphere side
34Lip seal

SeccoMix 481

Features

  • For top entry drives
  • For steel vessels acc. to DIN resp. Non-DIN
  • Nitrogen pressurized dual seal, single seal optional
  • Balanced
  • Independent of direction of rotation
  • Multiple springs rotating
  • Dry running
  • Cartridge unit

Advantages

  • Ready-to-fit and factory-tested unit
  • With or without bearing available
  • Suitable for pressure reversal e.g. in case of barrier pressure failure
  • No contamination of the product by barrier fluid
  • Friction-locked connection to the shaft
  • Connections to DIN 28138 standards or as required (SeccoMix 451)
  • ATEX certification available on request

Operating range

Shaft diameter:
d1 = 40 ... 220 mm (1.57" ... 8.66")
Pressure: p1 = vacuum ... 6 bar (87 PSI)
Temperature: t1 = -20 °C ... +200 (250*) °C
(-4 °F ... +392 (482*) °F)
Sliding velocity: vg = 0 ... 2 m/s (0 ... 6 ft/s)

For applications beyond this range, please inquire.

* with cooling flange

! It should be noted that the extremal values of each operating parameter cannot be applied at the same time because of their interaction.

Materials

Seal face: Carbon graphite, FDA conform
Seat: Silicon carbide, FDA conform
Secondary seals and metal parts according to application and customer's specifications.

Standards and approvals

  • FDA
  • ATEX
  • DIN 28138 (mechanical seals for agitator shafts)
  • DIN 28136 T2 (steel vessels)
  • DIN 28141 (flange connection for steel vessels)
  • DIN 28154 (shaft end for steel vessels)
  • TA-Luft-konform

Notes

Options:
  • Cooling or heating flange
  • Wear trap with flush
  • Wear trap with flush and cooling / heating flange
  • Polymerization barrier
  • Axial expansion joint (shaft movement)
  • Wiper ring (shaft movement)

Please inquire.

Recommended piping plans

Gas supply
EagleBurgmann GSS4015/A400-D0
for dual seals SeccoMix 481...D..



Product variants

SeccoMix 481
Single seal

SeccoMix 481L
Single seal with integrated floating bearing.

SeccoMix 451
All types of the SeccoMix 481 range are also available for unstepped shafts. Seal identification: SeccoMix 451...
Customized design or e.g. different torque transmissions are available.

Similar products

AD510 / AD520

  • Dry running
  • Single seal
  • Independent of direction of rotation

SeccoLip461

  • For top entry drives, on request for side and bottom entry drives
  • For glass-lined vessels
  • Dry-running
  • Modular and flexible design
  • Compensation of shaft deflection by patented technology
  • Independent of direction of rotation
  • Cartridge unit

SeccoLip481

  • For top entry drive;
    side drive also available on request
  • For stainless steel vessels
  • Dry-running
  • Modular and flexible design
  • Compensation of shaft deflection by patented technology
  • Independent of direction of rotation
  • Cartridge unit
  • Variant available for applications with product contact (SeccoLipR)
Contact

Inquire about individual solutions

We develop and produce customer-specific special and individual solutions for every application.

Inquire now Discover reference projects
Back to the overview